Quais Rive Droite, Genève

Exceptionnel : Magnifiques bureaux traversants au Quai des Bergues

Type de bien Local commercial
Surface habitable 78
Prix CHF 5'000.-
Référence BL0126

Donnez une nouvelle dimension à votre activité ! Ne manquez pas l’opportunité exceptionnelle de louer ces bureaux traversants dans un emplacement au fort potentiel commercial et vue imprenable sur le lac.

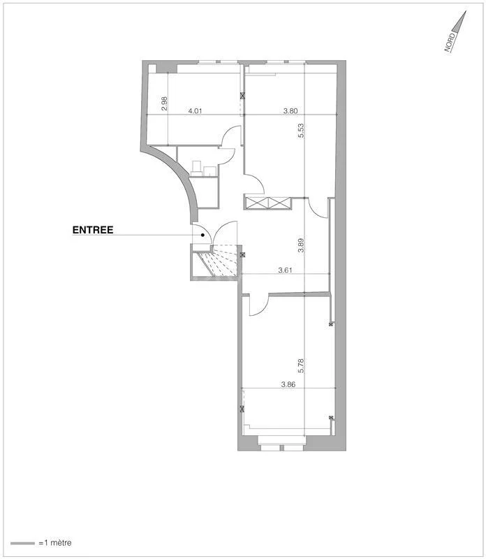
Surface nette de 78 m² au 6ème étage, proposant un aménagement « plug & work », plusieurs rangements intégrés et idéale pour :

– Sociétés financières

– Bureaux d’études (notaires, family offices etc.)

– Toute autre profession libérale ou activité tertiaire

Situés dans une zone de fort passage à Genève, bénéficiant d’une excellente visibilité et d’un accès facilité, ces bureaux se distribuent comme suit :

– Hall d’entrée

– Salle IT

– 3 bureaux fermés

– Espace kitchenette

– 1 WC

Annexe :

– 1 local d’archives en sous-sol (en sus, CHF 200.-/mois)

Excellente accessibilité via les transports publics via les arrêts "Mont-Blanc" ou "Bel-Air" :

Arrêt Mont-Blanc

– Bus : 6, 8, 9, 25 et 274

– Ferry : 3150, 3154

Arrêt Bel-Air

– Bus : 2, 3, 5, 7, 10, 19, 20, 80 et 92

– Tram : 12, 14, 17 et 18

En face du pont de la machine, permettant de rejoindre la rive gauche et tous ses commerces en moins de 5 minutes.

Informations pratiques :

– Disponibilité : mai 2026

– Charges mensuelles (en sus, CHF 150.-/mois)

– Informations complémentaires et visites sur demande

Ne laissez pas passer cette opportunité unique ! Pour plus d’informations ou pour planifiez une visite, contactez-nous dès maintenant.

Courtier en locations résidentielles

Daniel Sousa

locations@privalia.ch
+41 22 308 52 07

+41 22 308 52 07 locations@privalia.ch

Pourquoi cet emplacement est parfait

Courtier en locations résidentielles

Daniel Sousa

locations@privalia.ch
+41 22 308 52 07

+41 22 308 52 07 locations@privalia.ch

Réserver une visite

Organiser une visite

Prenez rendez-vous pour découvrir le bien.